Suan Plu Studio
Bangkok
,
Thailand
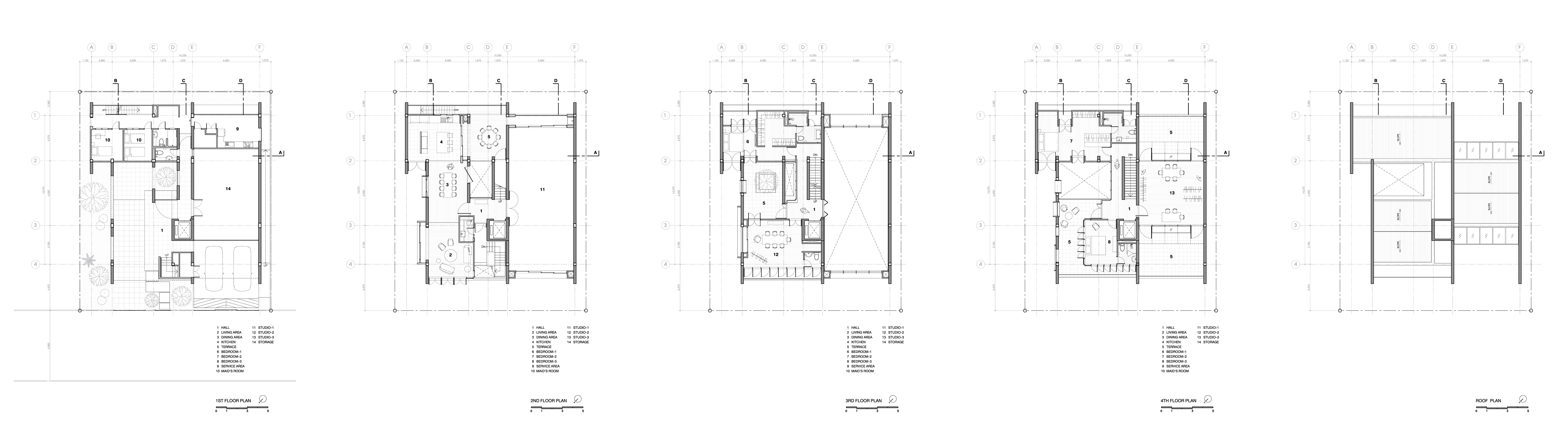
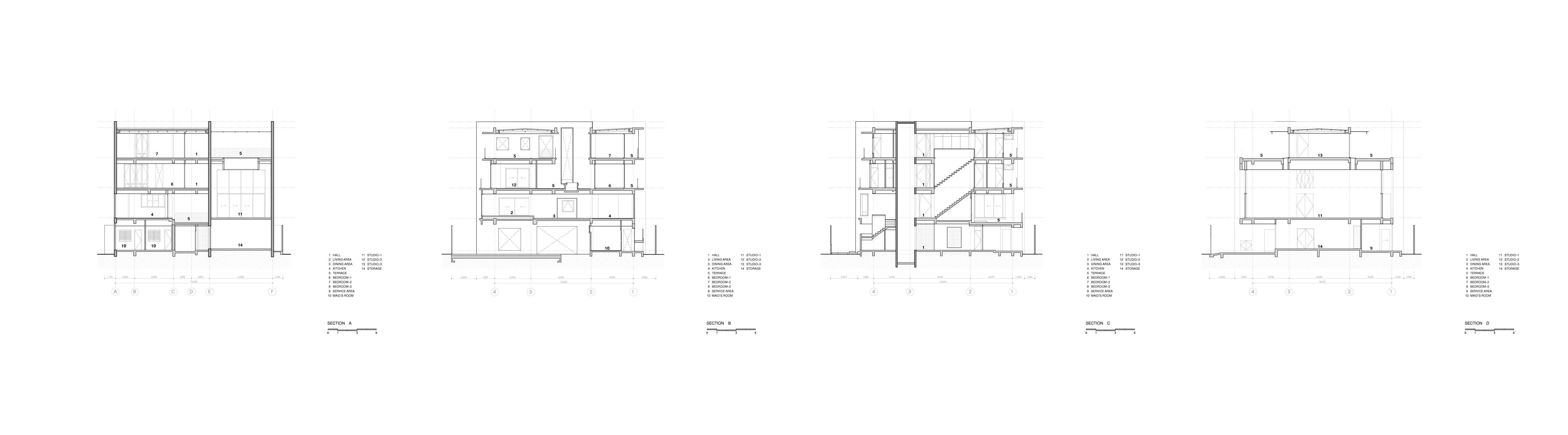
The project is a house and studio of Pinaree Sanpitak, one of the most renowned Thai artists of our time. Situated in an old residential neighbourhood of Bangkok, where most of the buildings still remains in a small scale among thick layers of trees, the house attempts to blend in even with a bigger volume than that of its surrounding. The spatial organization is designed to receive several gathering scenarios of 24 hours a day working-as-living life of the artists. The possibility to connect to the outdoor space with tree of every single room is also the key feature of the house. The windows are the main device to frame and distance the outside world from the house / studio.


















No items found.