S49
Shophouse was the most common building typology of Bangkok during the process of urbanization of the city in the past century. However they are getting obsoleted nowadays because of city's the transformation. Bangkok urban fabric is, nowadays, full of not-properly-utilized shophouses in most of the prime areas.
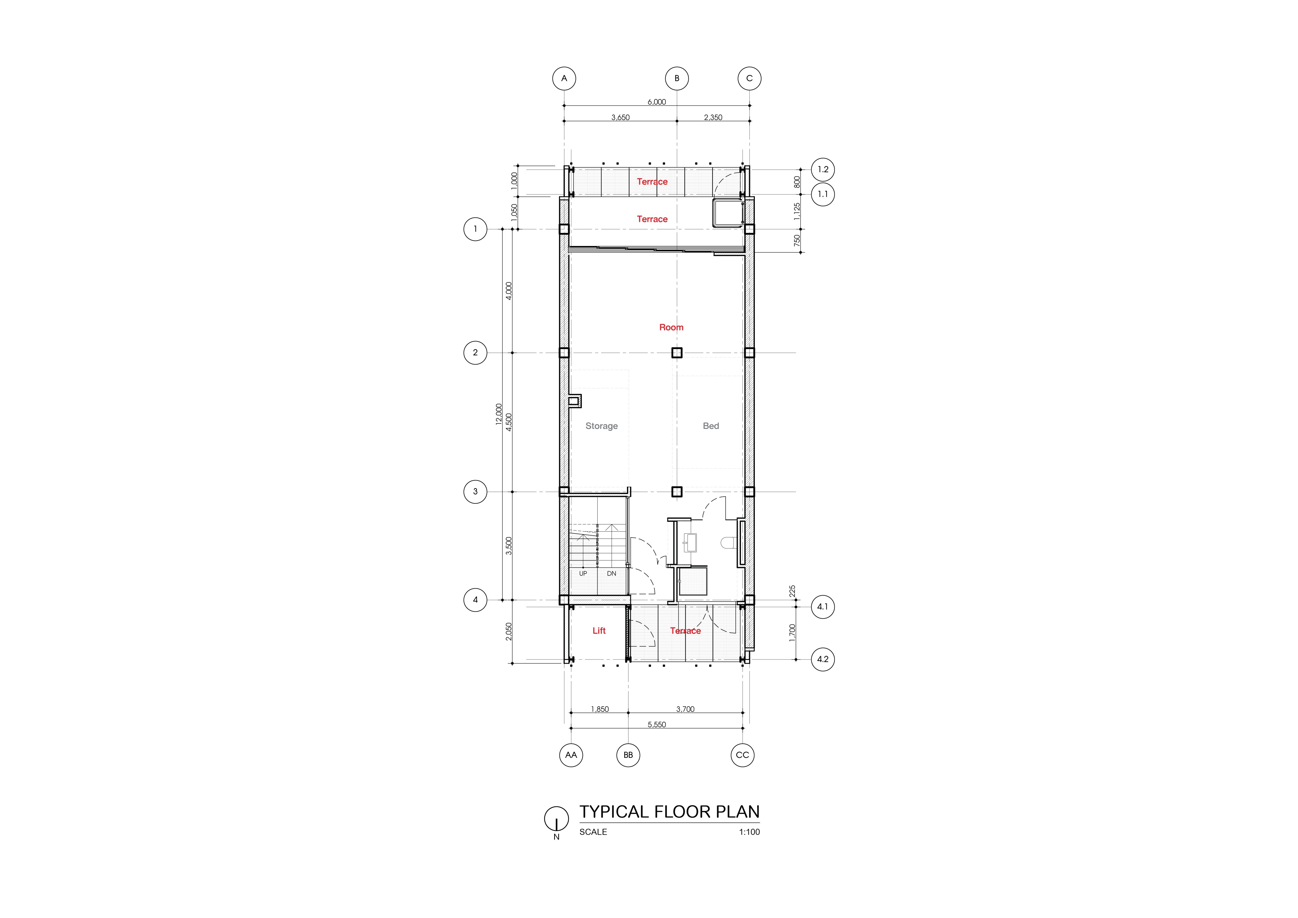
The project is an attempt to experiment with shophouse typology's transformation. The existing condition were two not-in-use units of shophouse in one of crowded area of Bangkok. Every floor is remodelled into separated office or living unit. The front and the back of the building become perforated space with industrial grating floors and the prefabricated industrial metal fence for small plants to hang on which allows the lights and airs to flow in closer to the living space inside. Meanwhile both spaces become connection between each floor. The rooftop provides common open space area for the building.

















